Без чего не обойтись в ремонте? Правильно – без плана. А в нашем случае без дизайн-проекта.
Вы можете прийти к нам с готовым дизайн – проектом, или заказать комплект чертежей и визуализаций у наших партнеров. Мы работаем с ведущими студиями Казани.
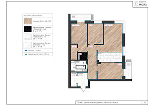
Вот пример дизайн проекта Никиты Маркелова и мастерской Марка:
| Дизайн-проект интерьеров квартиры площадью 97 м2 |
Дизайн-проект интерьеров квартиры площадью 105,5 м2 |
|
|
Наши преимущества
-
Комплексный подход
Свои специалисты для каждого из этапов работ. От дизайна и проекта до строительства и отделки. Единственные в ДВ регионе, кто делает идеально каждый этап работ - это Кодолов Групп. -
Гарантия
Строим строго с соблюдением СНИП и ГОСТ. Гарантия на долгие годы, благодаря комплексному подходу. 97% заказчиков рекомендуют нас. -
Показываем результат
Возможность посетить построенный дом и получить отзывы от наших заказчиков. -
Свой штат архитекторов
Проект Вашего дома можно разработать «С нуля», а можно найти уже понравившееся вам решение. -
Свой штат специалистов, мастеров и инженеров
Приемка каждого строительного этапа производится инженером технического надзора. -
Полное сопровождение
Можем помочь от выбора участка до строительства дома под ключ. Поможем решить юридические вопросы с землей и подключением коммуникаций на участок.
Этапы строительства дома в Казани
- Выбор участка
- Проектирование
- Уведомление о начале строительства
- Земельные работы
- Устройство фундамента
- Возведение стен, перекрытий и крыши
- Утепление и монтаж фасада
- Установка окон и дверей
- Уведомление об окончании строительства, получение кадастрового плана
- Газификация дома
- Финальное утверждение дизайн-проекта
- Чистовая отделка
- Возведение заборов и благоустройство участков
- Торжественное заселение
Наша команда
|
Макарчиков Семён
|
Александр
|
Эдем
|
|
Алексей
|
Сергей
|
Муса
|
|
Эльвир
|
Сергей
|
Сергей
|
|
Фанзиль
|
Рузаль
|
Константин
|
|
Булат
|
Алексей
|
Аркаик
|
|
Роман
|
Роман
|
Азар
|
|
Марат
|
Сергей
|
Юрий
|
|
Рамиль
|
Дмитрий
|
Вадим
|
|
Ирек
|
Максим
|
Ильдар
|
|
Виктор
|
Сергей
|
Фаяз
|
|
Эдуард
|
| Мы на |





